【网络思政篇】师范学院思政教育精品专栏(三十八)

发表于: 2026-03-12 点击:

 

师范学院坚持以习近平新时代中国特色社会主义思想为指导,把课程思政建设作为落实立德树人根本任务的关键环节,坚持知识传授与价值引领相结合,加强思想政治教育与专业教育的融合,推动形成专业课程和思政课程协同育人的良好氛围,促进学生思想政治素质和专业能力的全面提升。

 

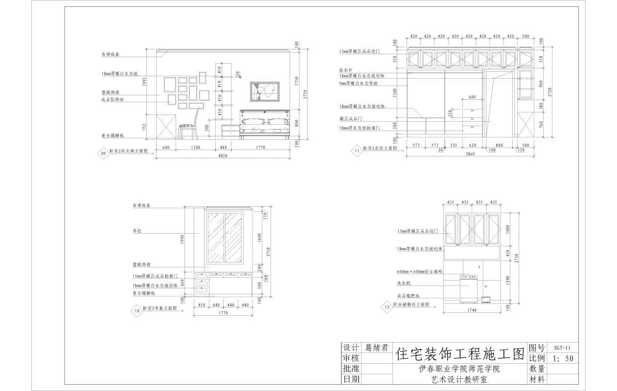
艺术设计教研室葛绪君老师始终坚守“思政领航、技能立身”的教学理念,在计算机辅助设计Auto CAD课程教学中,将思政教育元素与专业教学深度融合、有机渗透。葛绪君老师带领学生深耕Auto CAD操作技能,聚焦施工图绘制的核心要求,引导学生深刻理解精准规范的施工图不仅是专业能力的体现,更是现代装饰行业高质量发展、城市人居环境持续优化的重要基石,进而树立“图纸即责任、精准即担当”的职业认知。系统指导学生完成各类施工图设计,涵盖简约商务、生态人文、智能高效等多种风格,累计完成完整施工图作品数十套。通过实操实践与案例剖析,切实教育和激发学生精益求精、求真务实的职业素养,以及立足专业、服务社会的责任情怀,实现专业技能提升与思政素养培育的同频共振。

第四期作品:住宅空间装饰工程施工图线条精准利落,规范严谨,全面兼顾住宅空间的居住舒适性、功能实用性与视觉美观性,细节把控细致入微。设计贴合现代家庭居住需求,兼顾老人、小孩的使用便捷性,融入简约舒适的居家美学,既彰显了Auto CAD绘图的专业水准,又践行了“以人为本”的设计初心,充分体现了精准规范的绘图能力、求真务实的职业态度,以及立足住宅空间、服务居家生活的责任情怀。